Vali Manuals
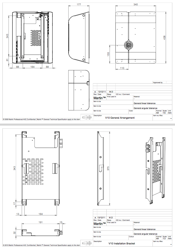
V10 dimensions diagrams
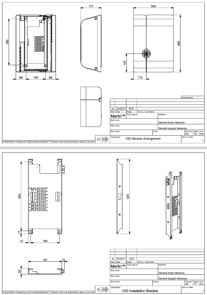
V20 dimensions diagram
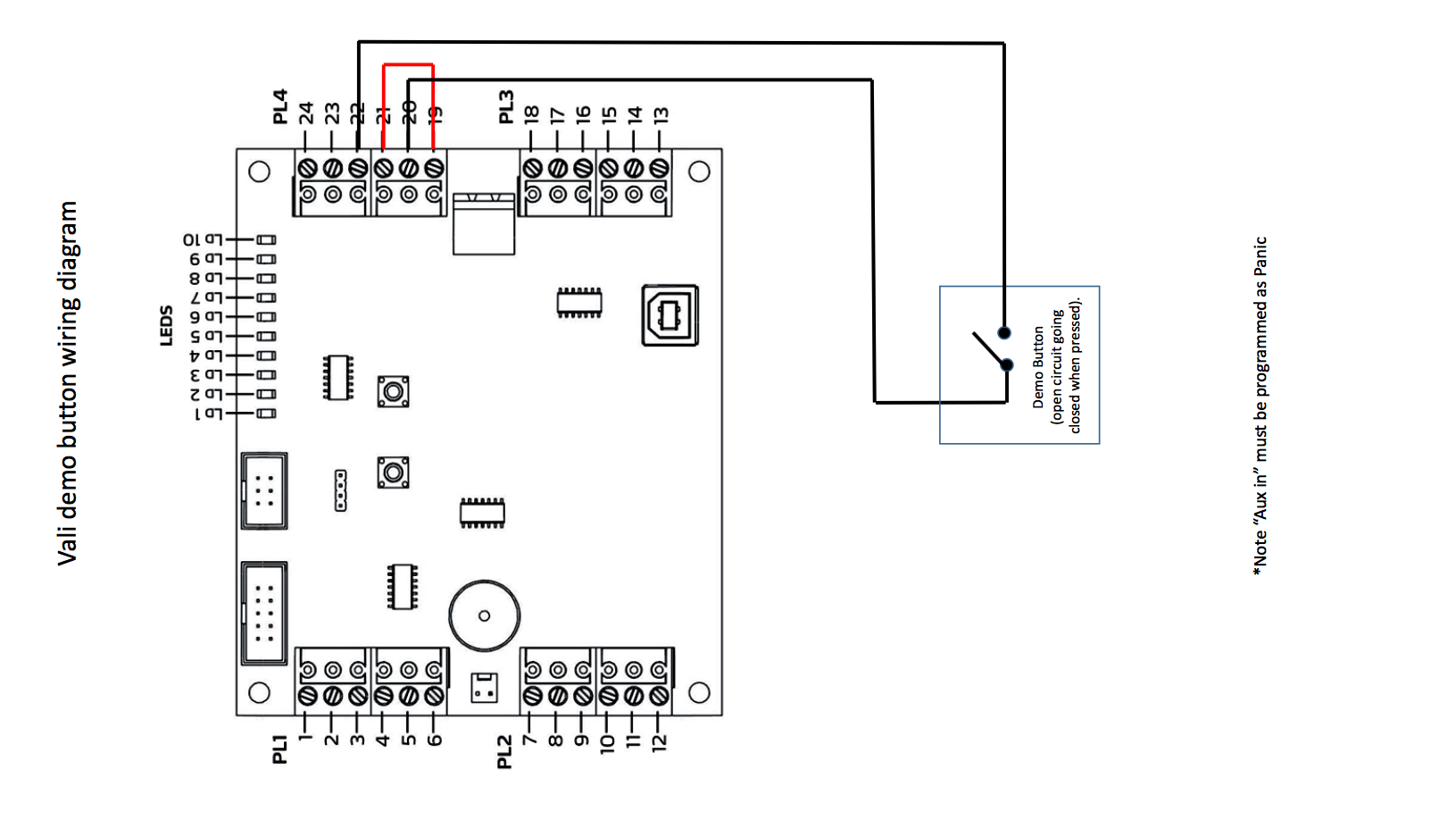
Demo button wiring diagrams
VALI Replacement Fluid Pipe UK
Replacement of Vali Fan
Vali firmware update procedure

1v4 Fluid sensor calibration without laptop video

Vali fan change